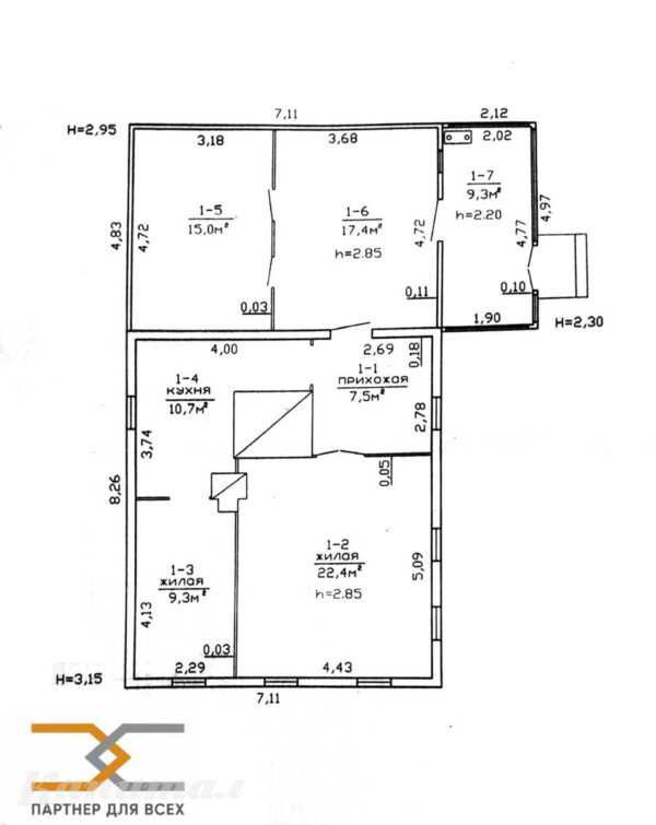
Продается дом в деревне Знамя Слуцкого района, в 17 км от города.
Подведен газ, вода — колодец, туалет на улице. Отопление печное. Современная печь из красного кирпича. Крепкие полы. По крыше проблем нет.
Большой участок 25 соток, на котором расположен погреб. Растут плодовые деревья.
Деревня имеет развитую инфраструктуру: школа,сад, мед.амбулатория, два магазина, автобусные остановки.
Дом подойдет для круглогодичного проживания.
ООО «Партнер для всех», УНП 690665135, лицензия Министерства юстиции Республики Беларусь № 02240/321 от 02.12.2016, договор на оказание риэлтерских услуг № 105/5 от 02.09.2025
Контакты
 +375-29-151-44-41
+375291514441
Для продолжения нужно
Если у Вас еще нет личного кабинета, он будет создан автоматически.
После входа Вы сможете подавать частные объявления бесплатно. Для подачи объявлений связанных с предпринимательской деятельностью (юр. лица, ИП, ремесленники, самозанятые...) нужен "Премиум" аккаунт.
В Ваших объявлениях будет указан номер телефона, к которому привязан личный кабинет.